







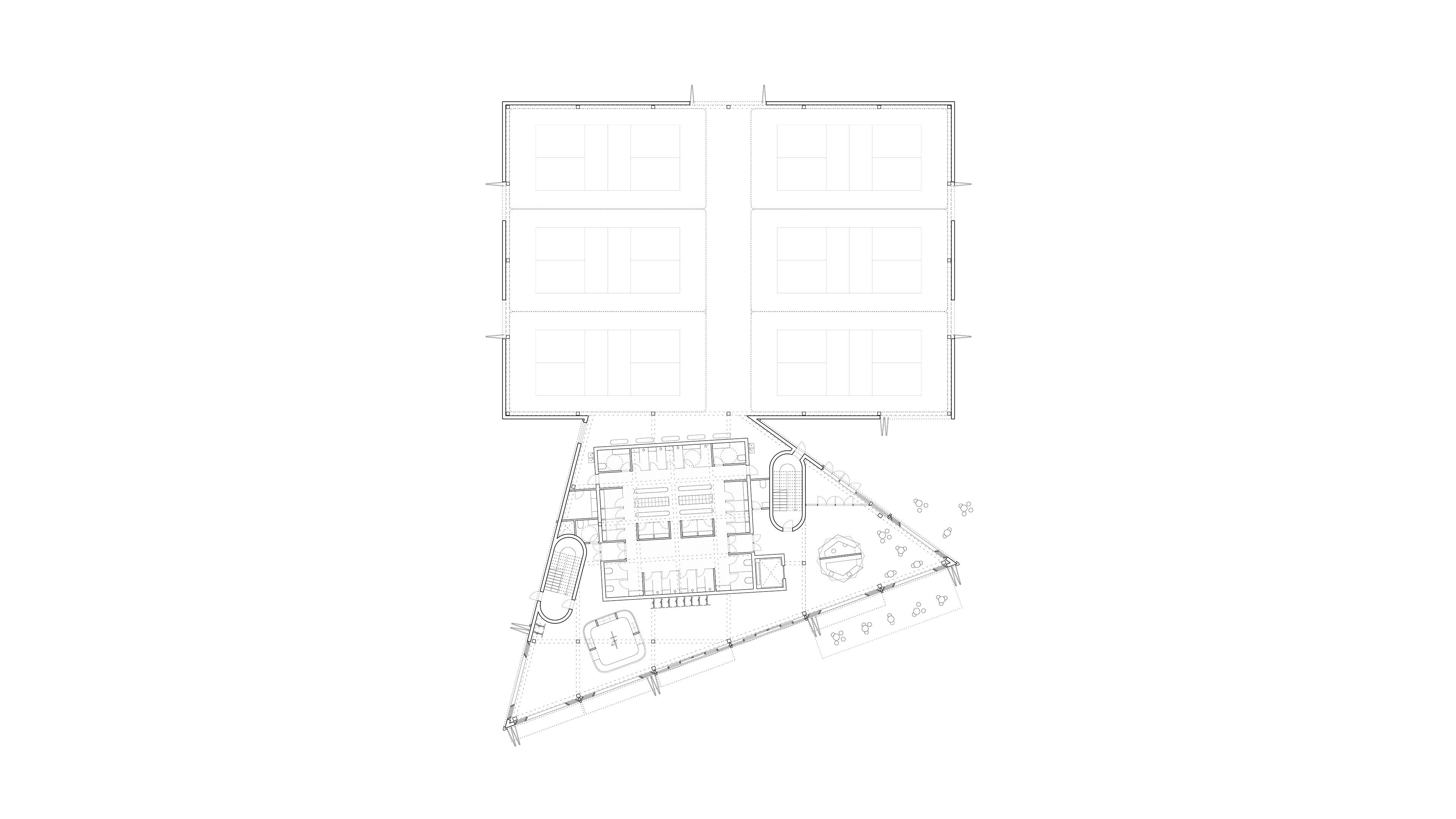
The studio’s theme explored the duality between contextual integration and iconic design. Our process focused on integrating ideal (iconic) geometric forms into a real-world context through a parametric process (Grasshopper), relying on site analysis and climatic data to generate an optimal form. Duration: 15 Weeks Year: 2024 Tutor: Ewan Branda Team: Maxime Bourgault / Anthony Corriveau